39
$525,000 Sale
Listed 23 days ago
93 MONTPETIT STREET
· 4
· 2.5
· 4
· 700 - 1100
Key Facts
Key facts for 93 MONTPETIT STREET
Property Type
House, House
Parking
Garage: Yes, 4 parking
MLS #
X12400631
Size
700 - 1100 sqft
Basement
Finished, Full (Finished)
Listed on
-
Lot size
-
Tax
-
Days on Market
-
Year Built
-
Maintenance Fee
-
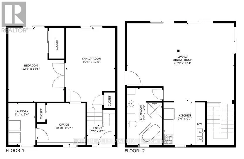
Description
WATERFRONT WITH IN LAW SUITE - L'ORIGNAL. Experience waterfront living at its finest with this unique property offering breathtaking views of the Ottawa River and Laurentian Mountains. This home features two distinct units, each with its own charm. The main unit offers two bedrooms (one on each floo...r), a large living room with a dining area, and a functional kitchen. An attached garage adds convenience. The second unit features two bedrooms, a comfortable living space, and a well-appointed kitchen. With 10 patio doors throughout the home, natural light floods the space, and you'll enjoy the scenery from almost every room. Each unit has its own laundry facilities and parking, ensuring privacy and independence. The waterfront yard is ideal for boaters and water enthusiasts. Upper and Lower balconies. Natural Gas furnace and two wall unit a/c. Connecting door between units. Don't miss the opportunity to own this property in a great location! 24hrs irrevocable on all offers., Flooring: Hardwood, Flooring: Ceramic, Flooring: Linoleum (id:10452)
Similar Properties (No results)
Room Types
Bathroom
-
Dimensions 3.91 m x 2.48 m
104.38 sqft
Bathroom
-
Dimensions 3.96 m x 2.31 m
98.46 sqft
Bedroom
-
Dimensions 5.18 m x 3.81 m
212.43 sqft
Listing courtesy of: EXIT REALTY MATRIX
This REALTOR.ca listing content is owned and licensed by REALTOR® members of The Canadian Real Estate Association.