6
$569,900 Sale
Listed 9 hours ago
720 WEST STREET
· 3
· 1.0
· 6
· 1100 - 1500
Key Facts
Key facts for 720 WEST STREET
Property Type
House, House
Parking
Garage: Yes, 6 parking
MLS #
X12464132
Size
1100 - 1500 sqft
Basement
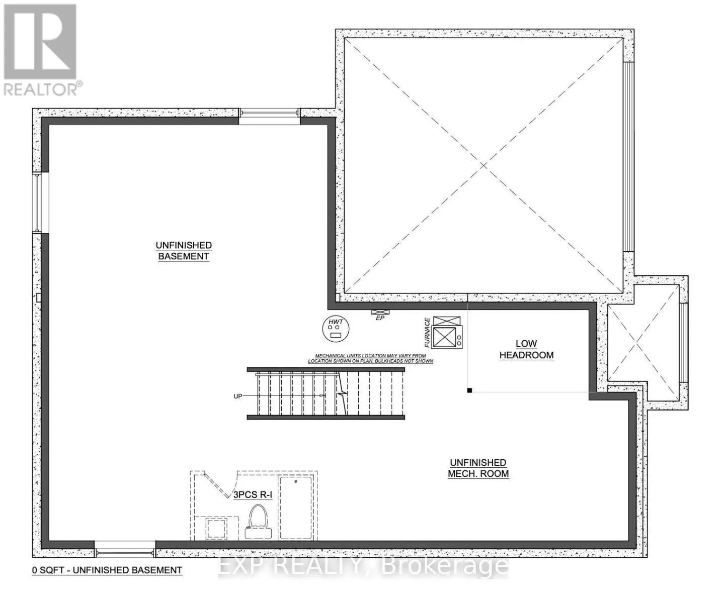
Unfinished, Full (Unfinished)
Listed on
-
Lot size
-
Tax
-
Days on Market
-
Year Built
-
Maintenance Fee
-
Description
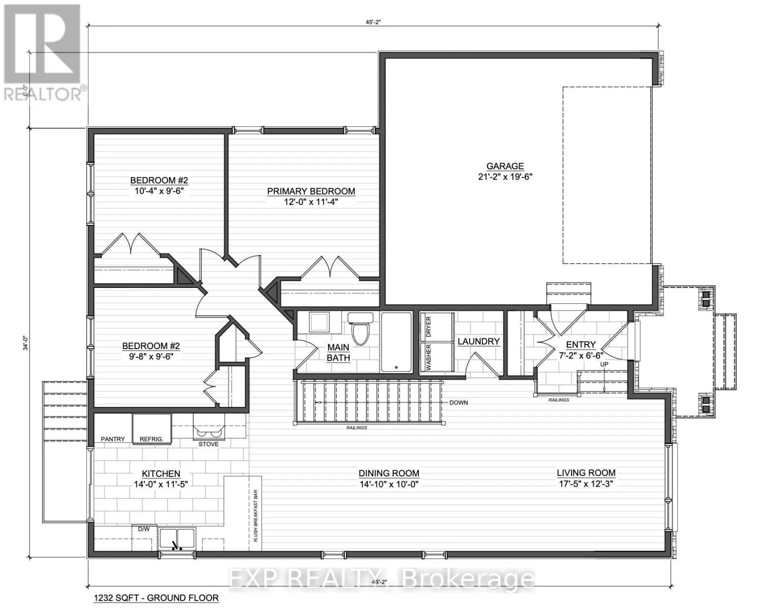
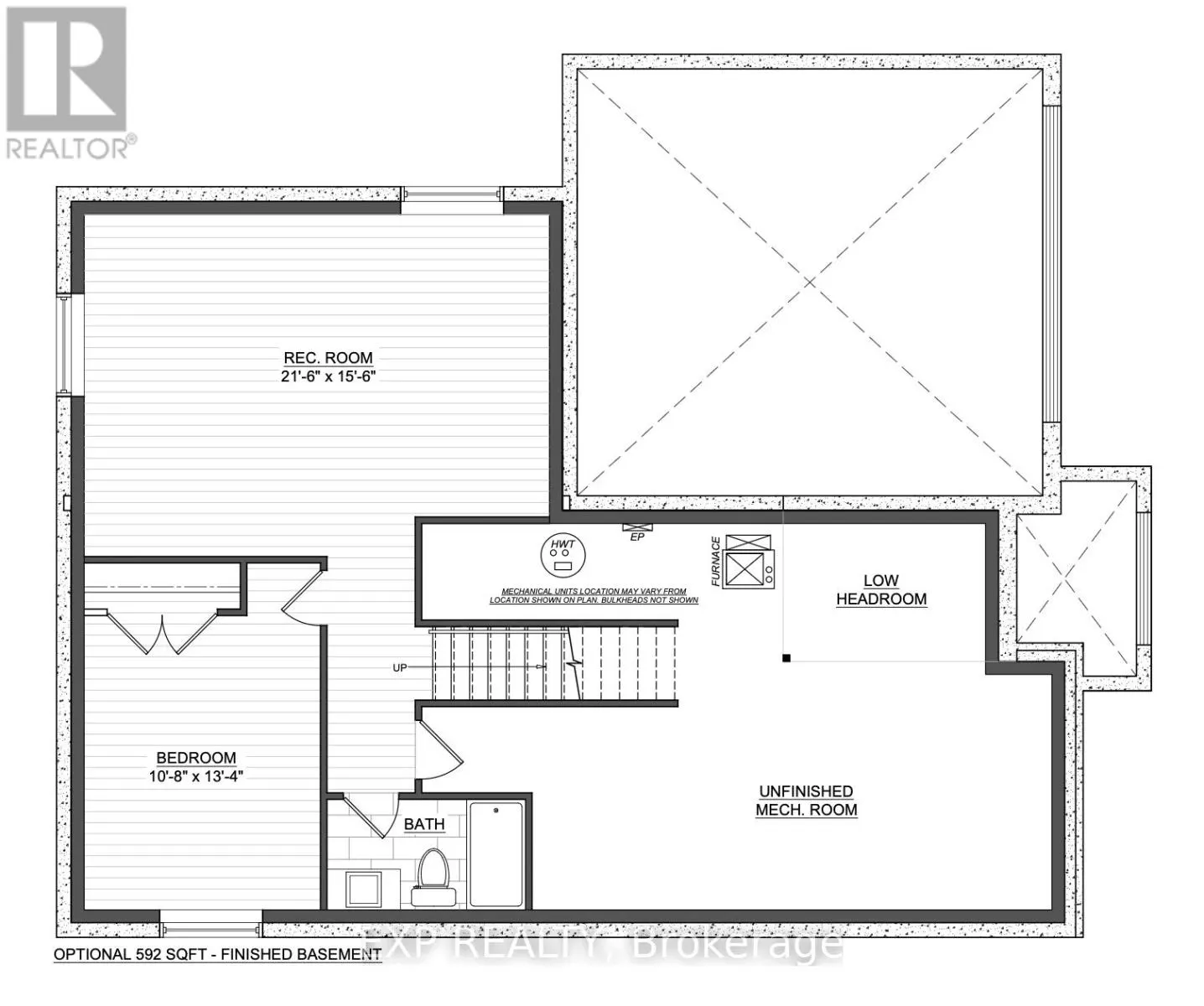
Welcome to this stunning 3-bedroom bungalow with an extended garage, offering modern comfort, thoughtful design, and the opportunity to personalize your dream home.The main floor spans 1,232 sq. ft., featuring a bright and open layout perfect for family living and entertaining. The spacious living r...oom flows seamlessly into the dining area and a well-appointed kitchen with a breakfast bar and walk-in pantry. A convenient main-floor laundry room adds to the homes everyday functionality.The primary suite is designed as a peaceful retreat with its own ensuite bathroom, while two additional bedrooms provide flexibility for family, guests, or a home office. An unfinished basement is included, with the option to upgrade to a beautifully finished lower leveladding an expansive rec room, additional bedroom, and full bath for even more living space. Customizable finishes and layouts available - choose your preferred flooring, cabinetry, countertops, and more to create a home that truly reflects your style. This is your chance to own a brand-new home built with quality craftsmanship, while tailoring the details to match your lifestyle. Taxes not yet assessed. (id:10452)
Similar Properties (No results)
Room Types
Bathroom
-
Dimensions 1.52 m x 2.74 m
44.83 sqft
Bedroom
-
Dimensions 3.47 m x 3.65 m
136.33 sqft
Bedroom 2
-
Dimensions 2.92 m x 3.16 m
99.32 sqft
Listing courtesy of: EXP REALTY
This REALTOR.ca listing content is owned and licensed by REALTOR® members of The Canadian Real Estate Association.